Саратовский краевед развил идею Рогожина о восстановлении булыжной мостовой на проспекте Кирова
16:49, 12 сентября 2019
В Саратове на проспекте Кирова можно воссоздать уголок дореволюционного города. Своим видением и проектом организации пространства с «Четвертой Властью» поделился саратовский блогер-краевед Владимир Лешуков.
Он признался, что вспомнил о своей идее после ознакомления с недавним материалом «Четвертой Власти», в котором рассказывается о предложении депутата областной думы Вадима Рогожина использовать открывшиеся в ходе реконструкции проспекта Кирова дореволюционные булыжники в создании тематического историко-культурного объекта. Основная суть идеи Рогожина сводится к тому, чтобы из фрагментов исторической брусчатки создать объект культурного наследия – небольшую площадку на проспекте, чтобы жители и туристы видели, какой была улица Немецкая в дореволюционное время.
«Прочитав эту новость, я вспомнил о том, что и сам предлагал аналогичную идею в августе. То, что предлагает Вадим Владимирович, я, конечно, поддерживаю двумя руками. У нас в общем-то идентичные предложения. Когда ООО «Концессии водоснабжения – Саратов» начали раскопки на проспекте Кирова и работы по замене трубы, весь город увидел, что там вскрылся своеобразный многослойный пирог. Сверху лежит плитка, под ней песок, под песком несколько слоев советского асфальта, а под асфальтом как раз та самая булыжная мостовая конца XIX и начала XX веков», - рассказал историк.
Когда рабочие просто вынимали и вывозили исторические булыжники куда-то в неизвестном направлении, блогер «поднял шум».
«Увидев, сколько их вынули, я начал звонить всем, кого знаю в мэрии, правительстве, разным людям. В итоге основную часть камней, извлеченных с участка между улицами Радищева и Максима Горького, увезли на хранение на базу МБУ «Дорстрой».
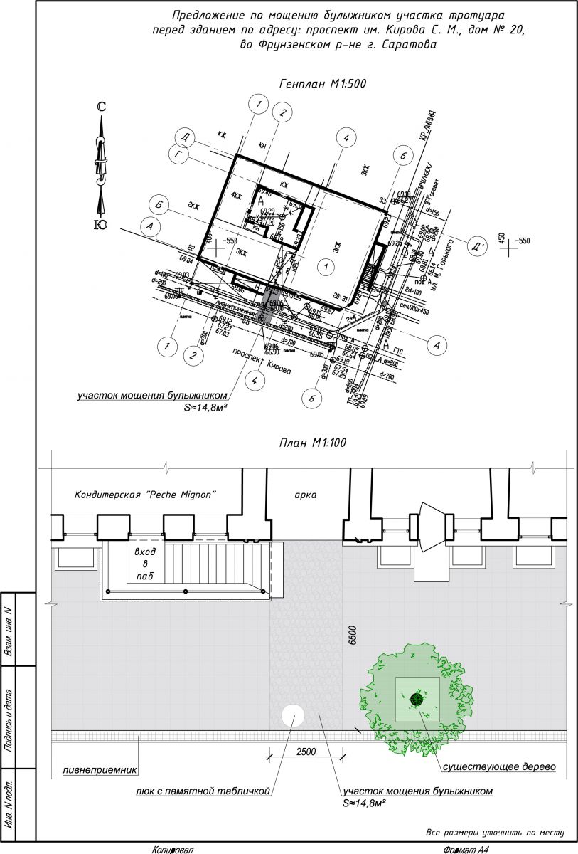
Потом я по своей инициативе связался с известным в городе бизнесменом Андреем Табояковым, у которого в собственности находится здание - исторический памятник на Кирова, 20, особняк купчихи Аделаиды Блюм. Мы, обсудив эту тему, решили, что было бы правильно замостить участок проспекта Кирова как раз рядом с его зданием вот этой самой булыжной мостовой», - пояснил Лешуков.
Предприниматель сказал историку, что готов выполнить необходимые работы за свой счет. У Табоякова, по словам краеведа, даже уже готов проект этого мощения, его выполнила архитектор Виктория Васильева. Помимо замощения части территории у здания историческим булыжником, блогер предложил перенести туда же крышку канализационного люка вместо той, которая в настоящее время прикрывает колодец у здания.
«Я считаю, что туда нужно перенести другую крышку от люка – красивую, историческую, которая в настоящее время находится на одном из перекрестков Саратова и как-то чудом еще там сохранилась. Причем она лежит в парковочном кармане, на нее заезжают машины. Эту крышку практически никто не видит, а на ней изображен дореволюционный саратовский герб – три стерляди и корона. Имеется также надпись в дореволюционной орфографии, что она изготовлена на заводе Коробова в Саратове», — рассказал краевед.
Помимо этого, в совместных планах Владимира Лешукова и предпринимателя Табоякова изготовить информационную табличку для размещения на здании. В ней должно сообщаться о решении саратовской городской думы о мощении улицы Немецкой.
«Я на эту тему общался с краеведом Вячеславом Давыдовым, который пообещал мне найти исторические документы. На этой табличке можно цитировать, как это решение утверждали и прописывали еще в царские времена саратовские депутаты», - пояснил Лешуков.
Блогер добавил, что тему о создании «исторического уголка» он озвучивал главе Саратова Михаилу Исаеву и его профильному заму Максиму Сиденко. После этого Сиденко в конце августа встречался с бизнесменом и краеведом, интересовался, как появление булыжного участка увязывается с интересами маломобильных групп населения. Однако дальше этого дело не пошло.
«Пока городская власть, к сожалению, никакого определенного решения не приняла. Мы отвечали, что инвалид может объехать участок с булыжником по центральной части проспекта. Мы-то собираемся укладывать его сбоку, рядом со зданием. Там же стоят и летние кафе, но никто не говорит, что из-за нарушения интересов маломобильного населения их нельзя ставить. Не знаю, почему этот вопрос тянется. Может быть, потому, что уже у мэрии есть готовый проект реконструкции проспекта и как-то сложно в него вносить некие изменения…» - предположил Владимир Лешуков.
В этой связи он выразил надежду, что интерес депутата Вадима Рогожина к судьбе этого уголка проспекта Кирова поможет реализовать задуманное.
«Суть в том, что идея Рогожина замечательная, и я предлагал ровно то же самое. Есть социально ответственный бизнес, готовый выполнить работы за свой счет. То есть от города практически никакие вложения не требуются. Буквально пару дней назад мы созванивались с Табояковым. Он мне предлагал приехать на склад «Дорстроя», посмотреть, сколько там камней. Забрать их к себе на хранение, привести в надлежащий вид и подготовить к тому, чтобы укладывать. Он также планирует в самое ближайшее время приступить к реставрации самого исторического здания. То есть там будет все очень красиво. Отреставрированный памятник, рядом булыжник, этот люк. И получится идеальный уголок старого города. Но вопрос не двигается. Я надеюсь, что, поскольку Вадим Владимирович к этой теме подключился, может быть, совместными усилиями у нас получится сделать хорошее дело и сохранить ту булыжную мостовую, по которой ходили Николай Чернышевский, Федор Шаляпин, Михаил Булгаков и многие известные люди, кто был в Саратове в конце XIX – начале XX века. Получится такой уголок старого города», - заключил блогер.
Лешуков отметил, что появление исторического участка на проспекте хорошо вписалось бы и в его проект «Саратовские артефакты», в рамках которого на пешеходной Волжской поставили старейший в городе электрический трамвайный столб у трамвая «Семен», а сегодня установили вентиляционную тумбу XIX века на бульваре Рахова.
Редакция предлагает администрации Саратова внимательно подумать, на каком участке проспекта можно восстановить булыжное покрытие, прислушаться к советам краеведов и архитекторов. Возможно, стоит спросить мнение у горожан через опрос в каком-либо формате. Хотя ответ, на взгляд «4В», столь очевиден, то не требует широкого обсуждения с общественностью — нужно просто делать.

- 1 Глава Саратова подписал распоряжение об окончании отопсезона
- 2 В Энгельсском районе дымится свалка «Ситиматика». Возбуждено уголовное дело
- 3 Главврача Калининской районной больницы арестовали из-за дела о взятке
- 4 В Саратове чиновники-контролеры выдавали 400 предостережений по провалам и просадкам на дорогах
- 5 Саратовские депутаты обратились к правоохранителям из-за застройки Авиатора
- 1 Маршрут автобуса №9А кардинально изменится с 11 апреля
- 2 Михаил Исаев подтвердил факт попадания в ДТП: Реанимация не понадобилась
- 3 Тысячи саратовцев остались без холодной воды из-за аварии в ЖК «Царицынский»
- 4 Завтра в Саратовской области завершается отопительный сезон
- 5 В Саратове определены первые претенденты в депутаты Госдумы от «ЕР»












